Szczecin, Warszewo

Mieszkanie na wynajem

Opis nieruchomości

OFERTA NA WYŁĄCZNOŚC - KLUCZE W BIURZE

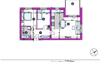
OFERTA WYNAJMU NOWEGO TRZYPOKOJOWEGO MIESZKANIA, POŁOŻONEGO W SZCZECINIE - DZIELNICA WARSZEWO OS. MAŁE BŁONIA ( POD PAPUGAMI). BUDYNEK Z 2022r. MONITORING I WIDNA. NIERUCHOMOŚĆ O POWIERZCHNI UŻYTKOWEJ 58m2 + TARAS 8m2 + MIEJSCE PARKINGOWE Z ZAPLECZEM I KOMÓRKA LOKATORSKA (300zł miesięcznie dodatkowej opłaty). 



W skład mieszkania wchodzi:


- salon z aneksem kuchennym ( nowoczesna zabudowa ze sprzętem AGD) 
- dwie oddzielne sypialnie 
- łazienka z toaletą (pralka na wyposażeniu)
- przedpokój z szafą w zabudowie

Mieszkanie umeblowane i wyposażone zgodnie z dokumentacją fotograficzną. 


Czynsz najmu 3.500zł ( razem z garażem) + opłata do zarządcy 520 zł/mies ( woda, śmieci, administracja, monitoring, winda), dodatkowo SEC. (ogrzewanie i ciepła woda) zimą ok. 380 zł/mies. , lato 110 zł/mies.  + prąd ok. 350zł za dwa miesiące.

Kaucja zabezpieczająca 5.000zł płatna przy podpisaniu umowy najmu. Minimalny okres najmu 12mies. 

Mieszkanie do wydania od ręki. 

 

Nota prawna

Opis oferty zawarty na stronie internetowej sporządzany jest na podstawie oględzin nieruchomości oraz informacji uzyskanych od właściciela, może podlegać aktualizacji i nie stanowi oferty określonej w art. 66 i następnych K.C.

Szczegóły oferty

Symbol oferty KNG-MW-12392
Powierzchnia 58,60 m²
Powierzchnia użytkowa 58,60 m²
Powierzchnia balkonów/tarasów 8,00 m²
Liczba pokoi 3
Piętro 1
Rodzaj budynku niski budynek
Technologia budowlana cegła + styropian
Kaucja zabezp. 5000
Standard
Opłaty w czynszu Części wspólne, fundusz remontowy, monitoring, ochrona, odśnieżanie, ogrzewanie, Parking, prąd, Winda, woda ciepła i zimna, woda/ryczałt na wodę, zaliczka na fundusz remontowy, zarząd
Liczba pięter w budynku 4
Garaż miejsce garażowe
Piwnica 5,00 m²
Stan lokalu bardzo dobry
Mies. czynsz admin. 520 PLN
Czynsz zimowy 520 PLN
Okna nowe PCV
Balkon taras
Liczba tarasów 1
Rok budowy 2022
Plac zabaw tak
Widok na inne budynki
Gaz brak
Woda ciepła - miejska
Dojazd asfaltowa/kostka
Otoczenie budynki mieszkalne
Ogrzewanie centralne
Umeblowanie tak
Alarm tak
Winda tak
Liczba wind 1
Tarasy taras
Usytuowanie jednostronne
Klucze tak

Pomieszczenia

Powierzchnia pokoi 27,5m2; 10,5m2; 9,5m2 m2
Typ kuchni jasna z oknem
Rodzaj kuchni kuchnia wyposażona
Powierzchnia kuchni 6 m2
Typ łazienki razem z wc
Liczba łazienek 1
Powierzchnia łazienki 5 m2
Glazura łazienki nowego typu
Wyposażenie łazienki natrysk, ogrzewanie podłogowe, pralka, umywalka, WC
Liczba przedpokoi 1
Powierzchnia przedpokoi 6 m2

Podobne oferty

mieszkanie na wynajem - Szczecin, Stare Miasto

mieszkanie na wynajem

Szczecin, Stare Miasto
  45,00 m2 56,67 zł/m2
mieszkanie na wynajem - Szczecin, Stare Miasto

mieszkanie na wynajem

Szczecin, Stare Miasto
2 pokoje 50,00 m2 54,00 zł/m2
mieszkanie na wynajem - Szczecin, Warszewo

mieszkanie na wynajem

Szczecin, Warszewo
4 pokoje 130,00 m2 26,92 zł/m2
mieszkanie na wynajem - Szczecin, Centrum

mieszkanie na wynajem

Szczecin, Centrum
2 pokoje 34,00 m2 76,47 zł/m2

Napisz do nas

Proszę wypełnić to pole
Proszę wypełnić to pole
Proszę wypełnić to pole
Proszę wypełnić to pole

Ta strona wykorzystuje pliki cookies w celach statystycznych oraz w celu dostosowania naszych serwisów do indywidualnych potrzeb klientów. Zmiany ustawień dotyczących plików cookie można dokonać w dowolnej chwili modyfikując ustawienia przeglądarki. Korzystanie z tej strony bez zmian ustawień dotyczących cookies oznacza, że będą one zapisane w pamięci urządzenia.

rozumiem