Kołbaskowo, Rajkowo

Dom na sprzedaż

Opis nieruchomości

Na sprzedaż wyjątkowy dom jednorodzinny w zabudowie szeregowej w Rajkowie (Nowe Warzymice)

Spokojna okolica oddalona od zgiełku centrum o rodzinnym i wyjątkowym charakterze, liczne tereny zielone, trasy rowerowe i pisze w pobliżu. Nowoczesne osiedle domów w zabudowie szeregowej. Dzięki usytuowaniu nieruchomości w skrajnym szeregu zapewnia komfort i prywatność przyszłym mieszkańcom. 

Do centrum Szczecina 15 minut samochodem, również komunikacją miejską. Dzięki wystawie południowej nieruchomość jest bardzo słoneczna i przytulna. W okolicy szkoły, przedszkola, place zabaw, boiska, a także markety i punkty handlowo-usługowe.

Nieruchomość wybudowana pod koniec 2025 r. Bezpośrednio przy budynku przynależne dwa miejsca parkingowe.


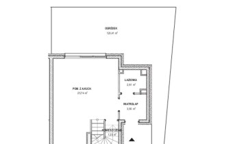
Na powierzchnię 90,31 m2 składa się:

Parter:
  • salon z aneksem kuchennym,
  • WC,
  • wiatrołap,
  • dodatkowe pomieszczenie,
Bezpośrednio z salonu wyjście na ogród o pow. 120 m2.

I piętro:
  • pokój,
  • pokój,
  • przedpokój,
  • łazienka.
II piętro:
  • pokój,
  • garderoba z oknem/pokój,
  • łazienka.
Z pokoju wyjście na taras o pow. 5 m2

Niskie koszty użytkowania, dzięki zastosowaniu nowoczesnych i ekologicznych rozwiązania technologicznych, które pozwalają znacząco obniżyć koszt utrzymania: rekuperacja, pompa ciepła - ogrzewanie podłogowe, możliwość zainstalowania na dachu budynku paneli fotowoltaicznych. Wysoka jakość wykonania inwestycji, okna trzyszybowe, drzwi antywłamaniowe.  

Funkcjonalne rozwiązania w trosce o mieszkańców i ich wygodę m. in. stojaki na rowery, nowoczesne place zabaw, pasaż spacerowy z pergolami, zielone ściany, liczne nasadzenia, oświetlenia led, elementy małej architektury. 

Termin wydania do uzgodnienia.

Zachęcam do kontaktu telefonicznego w celu uzyskania bardziej szczegółowych informacji oraz umówienia prezentacji.

Nota prawna

Opis oferty zawarty na stronie internetowej sporządzany jest na podstawie oględzin nieruchomości oraz informacji uzyskanych od właściciela, może podlegać aktualizacji i nie stanowi oferty określonej w art. 66 i następnych K.C.

Szczegóły oferty

Symbol oferty KNG-DS-12380
Powierzchnia 90,31 m²
Powierzchnia użytkowa 90,31 m²
Powierzchnia balkonów/tarasów 4,99 m²
Liczba pokoi 5
Rodzaj domu skrajny szereg
Liczba pięter w budynku 2
Stan prawny Własność
Okna nowe PCV
Liczba tarasów 1
Pozwolenie na użytkowanie tak
Ogrodzenie działki metalowe
Rok budowy 2026
Gaz brak
Dojazd asfalt
Otoczenie zabudowa jednorodzinna
Ogrzewanie pompa ciepła
Tarasy jest
Prąd jest
Kanalizacja miejska

Pomieszczenia

Rodzaj kuchni aneks kuchenny - połączony z salonem
Liczba łazienek 2
Liczba WC 1

Kalkulator kredytowy

PLN
%
Wysokość raty

Kalkulator kosztów

PLN
PLN
PLN
PLN
PLN
PLN
%
PLN
Podatek od czynności cywilno-prawnych
Taksa notarialna (opłata notarialna)
VAT od taksy notarialnej (opłaty notarialnej)
Wniosek do WKW
VAT od wniosku do WKW
Prowizja agencji nieruchomości
VAT od prowizji agencji nieruchomości
Wypisy aktu notarialnego - około
RAZEM (cena + opłaty)

Uwaga: mogą wystąpić dodatkowe opłaty za założenie księgi wieczystej oraz ustanowienie hipoteki.

Podobne oferty

dom na sprzedaż - Kołbaskowo, Kamieniec

dom na sprzedaż

Kołbaskowo, Kamieniec
7 pokoi 380,00 m2 2 342,11 zł/m2

Napisz do nas

Proszę wypełnić to pole
Proszę wypełnić to pole
Proszę wypełnić to pole
Proszę wypełnić to pole

Ta strona wykorzystuje pliki cookies w celach statystycznych oraz w celu dostosowania naszych serwisów do indywidualnych potrzeb klientów. Zmiany ustawień dotyczących plików cookie można dokonać w dowolnej chwili modyfikując ustawienia przeglądarki. Korzystanie z tej strony bez zmian ustawień dotyczących cookies oznacza, że będą one zapisane w pamięci urządzenia.

rozumiem