Szczecin, Niebuszewo, Księcia Barnima III Wielkiego

Lokal na sprzedaż

Opis nieruchomości

Do sprzedaży duży lokal użytkowy, dwupoziomowy (parter z witryną oraz pomieszczenia piwniczne) położony przy ul. Księcia Barnima III Wielkiego.
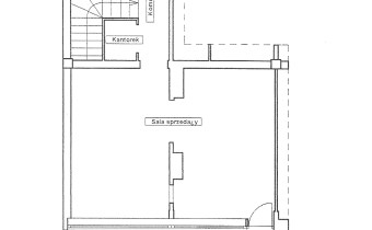
Lokal położony jest w budynku handlowo-usługowym, posiada dwa wejścia: jedno od frontu, drugie z tyłu budynku dla dostawców. Lokal składa się z dziewięciu pomieszczeń:

Parter: sala główna z witryną, biuro oraz kantorek. Łączna powierzchnia parteru 48,70 m2.
Piwnica: cztery pomieszczenia magazynowe, zaplecze socjalne z kuchnią i pralnią oraz wc. Łączna powierzchnia piwnic 81,30 m2.

Ogrzewanie z sieci miejskiej, ciepła woda - podgrzewacz elektryczny. Czynsz do spółdzielni wynosi 1 007,97 zł netto (do czynszu najmu należy doliczyć podatek VAT w stawkach: 8% woda i kanalizacja, 23% eksploatacja, ogrzewanie oraz pozostałe składowe czynszu),

Obecnie w lokalu prowadzona jest działalność związana z sprzedażą artykułów spożywczych i monopolowych. 

Możliwość wynajęcia dodatkowej powierzchni 48,95 m2 (parter z witryną i dodatkowym wejściem).

Polecam.
 

Nota prawna

Opis oferty zawarty na stronie internetowej sporządzany jest na podstawie oględzin nieruchomości oraz informacji uzyskanych od właściciela, może podlegać aktualizacji i nie stanowi oferty określonej w art. 66 i następnych K.C.

Szczegóły oferty

Symbol oferty NGK-LS-493
Powierzchnia 130,00 m²
Liczba pokoi 9
Piętro parter
Rodzaj budynku budynek wolnostojący
Opłaty w czynszu administracja, ogrzewanie, woda, wywóz śmieci
Opłaty wg liczników prąd
Liczba pięter w budynku 1
Stan lokalu dobry
Stan prawny Spółdzielcze własnościowe
Mies. czynsz admin. 1 008 PLN
Okna PCV
Instalacje dobre
Rodzaj lokalu wielopoziomowy
Przeznaczenie lokalu handlowo-usługowy, magazynowy
Gaz brak
Woda tak
Dojazd asfalt
Otoczenie zabudowa wielorodzinna
Ogrzewanie centralne
Alarm tak
Usytuowanie dwustronne
Położenie lokalu ruchliwa ulica
Witryna wystawowa duża
Wejście od ulicy

Lokalizacja

Kalkulator kredytowy

PLN
%
Wysokość raty

Kalkulator kosztów

PLN
PLN
PLN
PLN
PLN
PLN
%
PLN
Podatek od czynności cywilno-prawnych
Taksa notarialna (opłata notarialna)
VAT od taksy notarialnej (opłaty notarialnej)
Wniosek do WKW
VAT od wniosku do WKW
Prowizja agencji nieruchomości
VAT od prowizji agencji nieruchomości
Wypisy aktu notarialnego - około
RAZEM (cena + opłaty)

Uwaga: mogą wystąpić dodatkowe opłaty za założenie księgi wieczystej oraz ustanowienie hipoteki.

Podobne oferty

lokal na sprzedaż - Szczecin, Centrum

lokal na sprzedaż

Szczecin, Centrum
  90,00 m2 5 555,56 zł/m2
lokal na sprzedaż - Szczecin, Centrum, al. Piastów

lokal na sprzedaż

Szczecin, Centrum, al. Piastów
  177,00 m2 3 497,18 zł/m2
lokal na sprzedaż - Szczecin, Pomorzany

lokal na sprzedaż

Szczecin, Pomorzany
6 pokoi 69,10 m2 6 078,15 zł/m2
lokal na sprzedaż - Szczecin, Centrum

lokal na sprzedaż

Szczecin, Centrum
5 pokoi 105,00 m2 6 190,48 zł/m2

Napisz do nas

Proszę wypełnić to pole
Proszę wypełnić to pole
Proszę wypełnić to pole
Proszę wypełnić to pole

Ta strona wykorzystuje pliki cookies w celach statystycznych oraz w celu dostosowania naszych serwisów do indywidualnych potrzeb klientów. Zmiany ustawień dotyczących plików cookie można dokonać w dowolnej chwili modyfikując ustawienia przeglądarki. Korzystanie z tej strony bez zmian ustawień dotyczących cookies oznacza, że będą one zapisane w pamięci urządzenia.

rozumiem