Szczecin, Turzyn, Bolesława Śmiałego

Mieszkanie na sprzedaż

Opis nieruchomości

Możliwość zapłaty w dwóch transzach. Połowa przy sprzedaży, połowa rozłożona na dogodne raty.

Do sprzedaży mieszkanie 3 pokojowe, dwupoziomowe, położone przy Bolesława Śmiałego (przy przychodni).

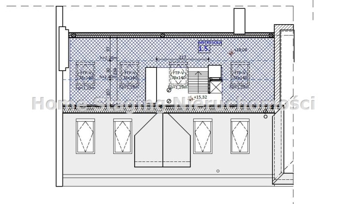
Adaptacja poddasza:
- pokój dzienny z aneksem kuchennym 15,55 m2,
- sypialnia 7,80 m2,
- sypialnia na drugim poziomie 10,90 m2,
- łazienka 5,34 m2,
- korytarz 2,64 m2.

Mieszkanie o jednostronnej - wschodniej ekspozycji okien. Powierzchnia użytkowa wg. dokumentacji projektowej to 42,23 m2 (całkowita 57,92 m2).
Ogrzewanie i ciepła woda - piec gazowy dwuobiegowy.

Standard: podłogi - płyta OSB oraz płyta ognioodporna, panele. Ściany i sufity wygładzone, pomalowane na biało, biały montaż. Zainstalowany piec dwu-funkcyjny wraz z grzejnikami oraz
rozprowadzone instalacje: elektryczna, gazowa i wodno – kanalizacyjna. Drzwi wejściowe antywłamaniowe, ognioodporne.

Podana cena jest ceną brutto, zawiera podatek VAT - kupujący nie płaci 2 % podatku PCC. Możliwość wykończenia lokalu pod klucz

Polecam.

 

Nota prawna

Opis oferty zawarty na stronie internetowej sporządzany jest na podstawie oględzin nieruchomości oraz informacji uzyskanych od właściciela, może podlegać aktualizacji i nie stanowi oferty określonej w art. 66 i następnych K.C.

Szczegóły oferty

Symbol oferty NGK-MS-507
Powierzchnia 42,23 m²
Powierzchnia użytkowa 42,23 m²
Liczba pokoi 3
Piętro 4
Rodzaj budynku kamienica
Technologia budowlana cegła
Standard
Liczba pięter w budynku 4
Stan lokalu deweloperski
Stan prawny Własność
Okna drewniane
Instalacje nowe
Balkon brak
Widok na inne budynki
Gaz jest
Woda piec gazowy dwufunkcyjny
Dojazd asfalt
Otoczenie centrum miasta
Ogrzewanie gazowe
Umeblowanie brak
Usytuowanie jednostronne
Klucze tak

Lokalizacja

Kalkulator kredytowy

PLN
%
Wysokość raty

Kalkulator kosztów

PLN
PLN
PLN
PLN
PLN
PLN
%
PLN
Podatek od czynności cywilno-prawnych
Taksa notarialna (opłata notarialna)
VAT od taksy notarialnej (opłaty notarialnej)
Wniosek do WKW
VAT od wniosku do WKW
Prowizja agencji nieruchomości
VAT od prowizji agencji nieruchomości
Wypisy aktu notarialnego - około
RAZEM (cena + opłaty)

Uwaga: mogą wystąpić dodatkowe opłaty za założenie księgi wieczystej oraz ustanowienie hipoteki.

Podobne oferty

mieszkanie na sprzedaż - Szczecin, Centrum

mieszkanie na sprzedaż

Szczecin, Centrum
3 pokoje 68,00 m2 6 470,59 zł/m2
mieszkanie na sprzedaż - Szczecin

mieszkanie na sprzedaż

Szczecin
4 pokoje 114,00 m2 3 640,35 zł/m2
mieszkanie na sprzedaż - Szczecin, Pogodno

mieszkanie na sprzedaż

Szczecin, Pogodno
5 pokoi 109,55 m2 4 555,00 zł/m2
mieszkanie na sprzedaż - Szczecin, Stare Miasto

mieszkanie na sprzedaż

Szczecin, Stare Miasto
4 pokoje 79,66 m2 7 155,41 zł/m2

Napisz do nas

Proszę wypełnić to pole
Proszę wypełnić to pole
Proszę wypełnić to pole
Proszę wypełnić to pole

Ta strona wykorzystuje pliki cookies w celach statystycznych oraz w celu dostosowania naszych serwisów do indywidualnych potrzeb klientów. Zmiany ustawień dotyczących plików cookie można dokonać w dowolnej chwili modyfikując ustawienia przeglądarki. Korzystanie z tej strony bez zmian ustawień dotyczących cookies oznacza, że będą one zapisane w pamięci urządzenia.

rozumiem