Trzypokojowe, widne i kompletnie wyposażone mieszkanie z ogrodem na sprzedaż.
Dodatkowo istnieje możliwość zakupu garażu w hali z bezpośrednim dostępem z klatki schodowej.
Cicha i spokojna okolica, dobrze skomunikowana z centrum Szczecina.
Zapraszam do zapoznania się ze szczegółami oferty:
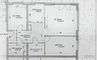
• powierzchnia użytkowa: 72,16 m²,
• ogródek: 96 m²,
• rok budowy w 2016 roku
• drewniany domek gospodarczy ok. 2 m²,
• garaż w hali pod budynkiem,
• ogrzewanie i ciepła woda z sieci miejskiej,
• automatyczne rolety zewnętrzne,
• ogrzewanie z kaloryferów z sieci miejskiej.
Rozkład pomieszczeń:
• korytarz - 10,41 m2
• salon – 21,39 m²
• kuchnia – 7,85 m²
• łazienka z prysznicem - 4,57 m2
• sypialnia - 13,53 m2
• pokój dziecięcy - 10,16 m2
• garderoba + pralnia 4,25 m2
Układ i wykończenie
Salon z aneksem kuchennym (29,24 m2) doświetlony trzema oknami o ekspozycji zachodnio-północnej. Połączony jest z korytarzem, co nadaje pomieszczeniu przestronności i dodatkowo zwiększa jego powierzchnię. Przestronny i słoneczny został zaprojektowany z funkcjonalnym podziałem na strefy: wypoczynkową z wygodną kanapą oraz miejscem na telewizor, odpowiednio wydzieloną strefą jadalnianą oraz aneksem kuchennym.
Z salonu można również wyjść na duży taras i pięknie zagospodarowany ogród.
Kuchnia ma pełne wyposażeniem AGD (lodówka side by side, zmywarka, piekarnik, płyta indukcyjna i okap. Na podłogach deska drewniana trójwarstwowa, w kuchni płytki.
Sypialnia z łóżkiem o szerokości 160 cm, toaletką z lustrem i szafkami do przechowywania. Ma okno od strony północnej. Na podłodze deska drewniana trójwarstwowa.
Pokój dziecięcy z oknem od strony zachodniej i widokiem na ogródek.
Łazienka z prysznicem typu walk in, wykończona dużymi płytkami. Prysznic jest bezbrodzikowy z odpływem liniowym, umywalka nablatowa. Dodatkowo duża szafka z szufladami pod umywalką oraz wc.
Garderoba z pralką i automatyczną suszarką oraz świetnie zaaranżowaną przestrzenią.
Korytarz wyposażony w wysoką szafę oraz szafkę na buty. Znalazło się tu także wygodne siedzisko oraz konsola z dekoracyjnym lustrem.
Standard pomieszczeń :
Mieszkanie w pełni zaprojektowane przez architekta wnętrz, z naciskiem na funkcjonalność i ergonomię. Wnętrze mieszkania jest niezwykle jasne, a taras zlokalizowany od zachodu jest perfekcyjnym miejscem na spędzanie letnich wieczorów na świeżym powietrzu.
Budynek:
Mieszkanie usytuowane na parterze w pięciopiętrowym budynku w zabudowie wielorodzinnej. Dwustronny wjazd na osiedle zamykany jest przez szlabany. Budynek okalają przynależne do mieszkań ogródki. Budynek z 2016 roku.
Koszty utrzymania:
• czynsz razem z garażem 490 zł/miesięcznie,
• ogrzewanie i ciepła woda i prąd – według zużycia.
Okolica i lokalizacja
Okolica bardzo spokojna, cicha i bezpieczna. Sąsiednie ulice są wyłącznie drogami dojazdowymi do posesji, co sprawia, że ruch jest spowolniony. Nieruchomość jest bardzo dobrze skomunikowana:
- 3 min do najbliższego przystanku autobusowego (linia 88),
- 12-15 min do pętli tramwajowej (linie 8,10),
W pobliżu znajdują się:
- na osiedlu ogólnodostępne place zabaw,
- przedszkole (100 m) – na tej samej ulicy,
- szkoła podstawowa (1,2 km),
- centrum handlowe CH Ster (800 m),
- Castorama (800 m)
- Żabka (200 m),
- zakład opieki zdrowotnej (400 m),
- apteka (800 m)
- Park Przygodna (200 m).
Forma własności
Pełna własność z KW.
Cena za mieszkanie: 935.000 zł.
Cena za garaż: 80.000 zł (opcjonalnie).
Zapraszam na prezentację.




Uwaga: mogą wystąpić dodatkowe opłaty za założenie księgi wieczystej oraz ustanowienie hipoteki.